Brand New Detached Industrial/Warehouse Premises

 

Summary

  • Brand new detached industrial/warehouse units
  • Approx. 294.3 sq m (3,168 sq ft) gross internal area
  • £35,000 per annum exclusive
  • 10 parking spaces
  • Prominent position at Bailey Gate Industrial Estate

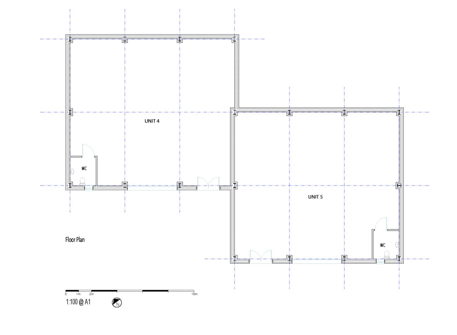
Accommodation

The accommodation comprises the following areas:

Namesq ftsq mAvailability
Unit - 4 1,577 146.51 Available
Unit - 5 1,591 147.81 Available
Total3,168294.32
Unit 4 & 5 Old Street, Bailey Gate Industrial Estate - IMG_2575.JPG

Location

The properties are located on the established Bailey Gate Industrial Estate in Sturminster Marshall. Bailey Gate is accessed from Station Road which in turn connects to Poole Road A350 which is the main route between Poole
and Blandford.

Poole Road A350 connects with A31 Dorchester Road at The Roundhouse roundabout which provides access west to Dorchester via A35 and access east to Wimborne, Ringwood and M27 beyond.

Get directions from Google Maps

Further Information

Rent £35,000 per annum

Rates Payable Upon Enquiry


Description

The properties comprise brand new, detached industrial units of steel portal frame construction with external walls of blockwork inner, brickwork outer construction with cladding to the upper elevations.

Unit 4 has a mono pitch roof and Unit 5 has a pitched roof each with insulated composite roof sheeting incorporating daylight panels. Each unit has a full height manual loading door and a single disabled compliant WC.

The units have power floated reinforced concrete floors and LED lighting together with aluminium double glazed windows and personnel doors.

Unit 4 has a clear internal height of 5.3m and Unit 5 has a clear internal height of 6.1m.

Each unit has a 3 phase electricity supply.

A lintel has been installed in the dividing wall to enable an opening between the two units.

The units have 10 allocated parking spaces and concrete forecourt loading areas.

Tenure

Available by way of a new Full Repairing and Insuring Lease on terms to be agreed.

Rent

£35,000 per annum exclusive of all outgoings.

Business Rates

The units are to be assessed for Business Rates.

EPC

Unit 4 - A (19)
Unit 5 - A (19)