For Sale: 12,271 Sq.ft Detached industrial unit with showroom and 8+ car parking spaces set within 0.609 Acres

 

Summary

  • Detached industrial unit with showroom
  • Comprising two adjoining industrial units
  • High quality showroom with private offices
  • Providing 8 car spaces to front of building
  • Additional parking located in the gated yard
  • RV: £42,750 - £21,332.25 payable rates
  • Loading area suitable for artic lorries
  • Gardens to side and rear of the property

Location

The property is located on Watford Bridge Industrial Estate off Watford Bridge Road and is located approximately 0.5 miles from New Mills town centre.

- Stockport: 9 miles.
- M60: 9.5 miles.
- Marple: 4.5 miles.

Get directions from Google Maps

Further Information

Price £1,050,000

Rates Payable £21,332.25 per sq ft


Description

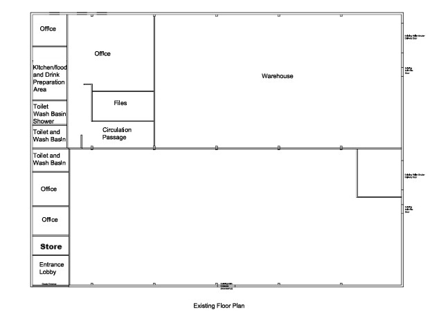
The property provides an industrial unit which has been renovated to a very high standard compatible to 2016 Building & Insulation requirements to provide rear warehousing with private and open plan offices plus kitchen facilities along with front showroom premises with private sales offices and toilet facilities which can be sub divided to provide two adjoining industrial units.

The unit provides accommodation on a gross internal area basis of approximately 12,271 Sq.ft and externally the site area extends to around 0.609 Acres/0.246 Hectares.

Car parking to the front of the showroom provides for 8 spaces with additional spaces available to the rear within the secure gates loading yard.

The unit benefits from fibre optic cabling & ceiling fire/smoke barriers.

Rateable Value

Rateable value: £42,750.
Small Business Rates Multiplier 2025/26: 49.9p.
Interested parties are advised to make their own enquiries with High Peak Council: 01298 28400.

Tenure

We understand that the property is Freehold.
Title Number: DY493804.

Utilities

Mains services are available including gas, electricity, water and drainage.

Planning

Planning granted 01/07/2014 HPK/2014/0156 for proposed Change of Use and External Alterations to Industrial Units 1, 1a & 1b Watford Bridge Works, Watford Bridge Road, New Mills to accommodate new Retail Showroom/Warehouse for Fountain Bathrooms and Kitchens, Market Street, New Mills now reconfigured as Unit 1 with High Peak Borough Council.

Conditions

Subject to Contract.
The property is sold with vacant possession.

Legal Costs

Each party to be responsible for the payment of their own legal costs associated with the sale.