Best in class, fully fitted office with terrace available via a flexible assignment / sublease to October 2029, with a break February 2027.

 

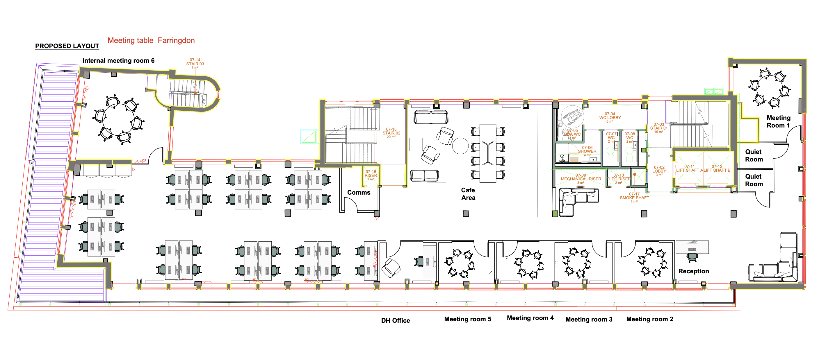
Summary

  • Private Terrace
  • High Quality Fit Out
  • EPC B
  • Tea point
  • 7 x meeting rooms
  • 32 desks

Accommodation

The accommodation comprises the following areas:

Namesq ftsq mAvailability
7th 4,182 388.52 Available
Total4,182388.52
The Wingate, 93-107 Shaftesbury Ave - 6_wingate_reception_caspectratio384021601.jpg

Further Information

Rent £115 per sq ft

Rates Payable £32 per sq ft

Service Charge £13 per sq ft

EPC Rating This property has been graded as B


Description

High quality fully fitted office with terrace available via a flexible sublease / assignment to February 2029.