Excellent CAT A + fitted floor| Located in the Heart of Fitzrovia| 3,480 sq.ft

 

Summary

  • CAT A +
  • 24 Desks
  • 10 Person Boardroom
  • 6 Person Meeting Room
  • 2 Call Pods
  • New key point...
  • Dedicated Kitchen and Breakout Areas
  • Secure Bicycle Storage
  • LED Lighting
  • Private Terrace
  • New key point...

Accommodation

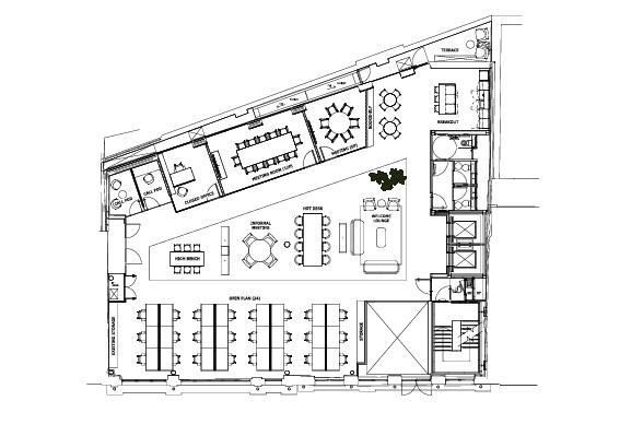
The 1st floor offers 3,480 sq. ft. of fully fitted stylish office space arranged in a mixture of open plan, meeting rooms and breakout areas. The accommodation comprises the following areas: » 24 workstations » Hot desking throughout » 10-person boardroom » 2 meeting rooms » 2 call pods » Dedicated kitchen and breakout areas » Arrival space » Private terrace

Namesq ftsq mAvailability
1st 3,480 323.30 Available
Total3,480323.30
Rathbone House - 11142025_104555.jpg

Location

Nestled in the vibrant and historic Fitzrovia district, 15 Rathbone Place offers more than just an address — it’s a gateway to London’s most compelling mix of culture, commerce, and connection. The building is located just north of Oxford Street and benefits from excellent transport links with Tottenham Court Road (Northern, Central & Elizabeth Lines), Oxford Circus ( Central, Victoria and Bakerloo Lines) are close by.

Get directions from Google Maps

Further Information

Rent £110 per sq ft

Rates Payable £35.92 per sq ft

Service Charge £15.97 per sq ft

Estate Charge n/a

EPC Rating This property has been graded as A


Description

15 Rathbone Place is an excellent quality refurbished building, excellently located in Fitzrovia.
The existing CAT A plus build was delivered by the Landlord in 2024 and is untouched. The 1st floor offers 3,480 sq. ft. of fully fitted stylish office space arranged in a mixture of open plan, meeting rooms and breakout areas.

» 24 workstations
» Hot desking throughout
» 10-person boardroom
» 2 meeting rooms
» 2 call pods
» Dedicated kitchen and breakout areas
» Arrival space
» Private terrace

Videos