Summary

Property Type Retail
Tenure To Let
Size 1,400 to 4,000 sq ft
Rent Rent on application
Rates Payable Business Rates will be assessed on completion of the development.
Service Charge There will be a service charge payable. Further details can be provided on application.
EPC Rating This property has been graded as B
  • City Centre Location
  • Multiple Units Available
  • Landmark Building

About

Plymouth Cross is another exciting phase of the West End retail regeneration. The development comprises up to 20,300 sq ft of ground floor retail and leisure opportunities, available in varying sizes from 1,400 sq ft to 4,000 sq ft (or can be combined), to suit individual requirements.

Plymouth Cross, Derry's Cross, Plymouth, Retail To Let - Photo 3

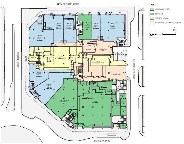
Accommodation

Namesq ftsq mAvailability
Unit - 3 11,300 1,049.80 Available
Unit - 5 4,026 374.03 Available
Unit - 6 2,457 228.26 Available
Unit - 8 3,500 325.16 Available
Unit - 9 2,734 254 Available
Unit - 10 2,243 208.38 Available
Unit - 11 1,711 158.96 Let
Unit - 12 1,337 124.21 Available
Unit - 13 4,003 371.89 Available
Total33,3113,094.69

Location

Positioned in the heart of Plymouth city centre with frontage onto New George Street, Plymouth's prime retail pitch and opposite Derry's Cross, the development offers a fantastic opportunity to acquire retail and leisure space in this well-known landmark building.

The retail / leisure element of Plymouth Cross extends to circa 64,625 sq. ft of which c.54% is already let to occupiers including Argos, Ryman & Premier Inn's Thyme Restaurant.

Get directions from Google Maps

Plymouth Cross, Derry's Cross - Photo 4

Further Information

  • Viewings

    Viewings are strictly by appointment via the joint sole agents; Cooke & Arkwright and Stratton Creber Commercial.