Newly Refurbished Light Industrial Units

 

Summary

  • Attractive Rural Location
  • 3 Phase Power to Each Unit
  • Electric Roller Shutter Doors
  • W/C with Water & Waste Provided
  • LED Lighting
  • Security Access Gate to Estate

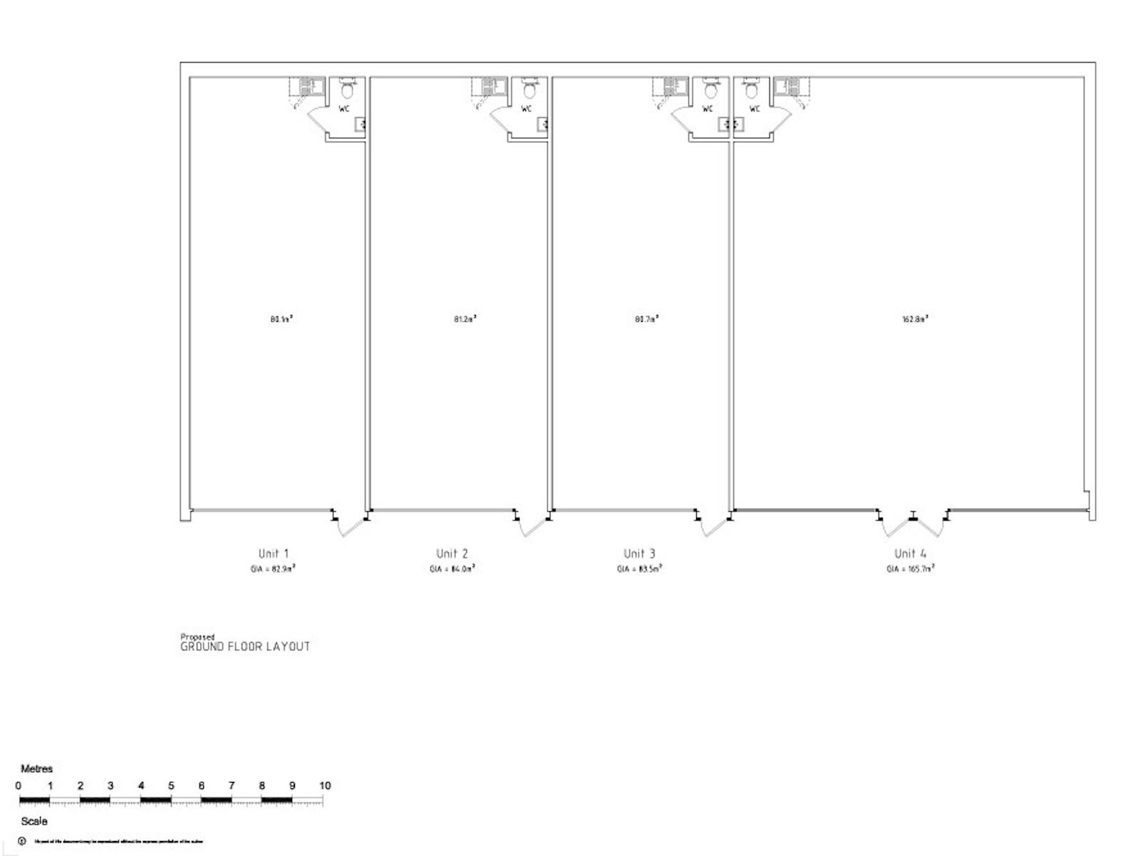
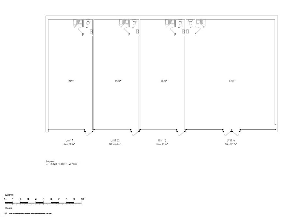
Accommodation

The accommodation comprises the following areas:

Namesq ftsq mAvailability
Unit - 1 900 83.61 Under Offer
Unit - 2 900 83.61 Under Offer
Unit - 3 900 83.61 Under Offer
Unit - 4/5 1,800 167.23 Under Offer
Total4,500418.06
Industrial Units, Westland Estate - new plan.jpg

Location

Westland Estate is accessed via Rosemary Lane in Alfold on the border of Sussex and Surrey. The A281 can be reached in under 5 minutes by vehicle which leads directly to Guildford in the North and Horsham in the East.

Get directions from Google Maps

Further Information

Rent £1,250 - £2,500 per month

Rates Payable TBC

Service Charge TBC

Estate Charge n/a

EPC Rating This property has been set as EPC exempt.
Reason: Industrial sites, workshops and non-residential agricultural buildings with low energy demand


Description

These light industrial units have been newly refurbished to provide 5 high quality commercial properties. Each have been built to a high spec including 3 phase power supply, electric roller shutter doors, LED lighting and are fitted with W/C. All units have access to power and water/waste.

Westland Estate is an attractive and private estate, which is secured by an automatic access gate at the entrance. There is also ample parking on site.

Units 4 & 5 can be combined to provide 1,800 sq. ft. of industrial space.

Business Rates

Rates Payable: £6 per sq. ft est (TBC)