High quality purpose-built three storey office accommodation

 

Summary

  • Modern detached three storey office building
  • Constructed to BREEAM "Excellent" environmental performance standard
  • Passenger lift
  • Dedicated on-site car park with additional overflow car park

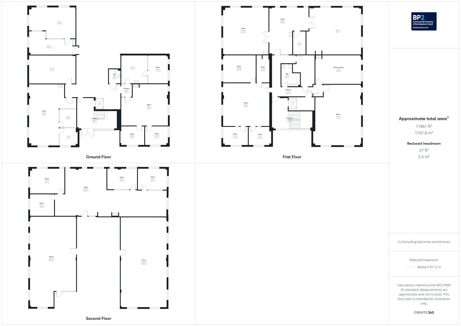
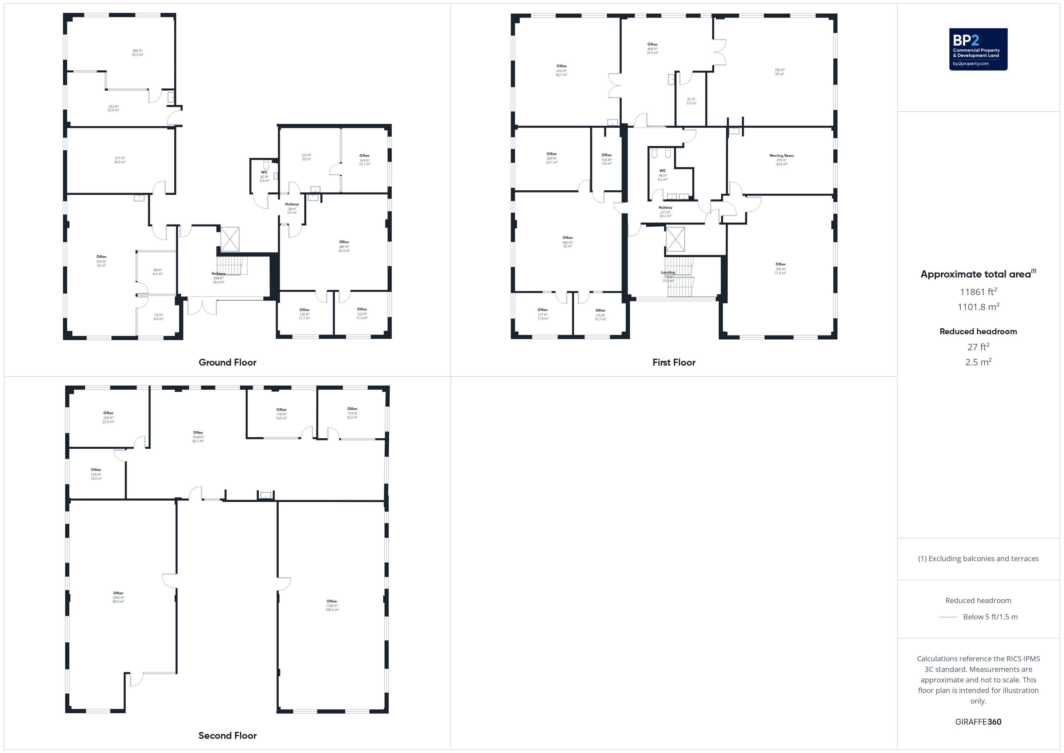
Accommodation

Namesq ftsq mAvailability
Ground - Ground Floor Offices 3,234 300.45 Available
1st - First Floor Offices 4,619 429.12 Available
2nd - Second Floor Offices 4,008 372.36 Available
Total11,8611,101.93
Glien House - CAM03725G0PR0065STILL017.jpg

Location

The property is prominently situated within Cillefwr Industrial Estate, which is a well-established commercial location on the western fringe of Carmarthen town centre.

There are excellent road communications, with good access to the A40 dual carriageway, linking to the M4 motorway and wider the South Wales region.

Get directions from Google Maps

Further Information

Rates Payable £50,268 per annum This assessment is for the whole property

Service Charge £3 per sq ft This relates to the internal communal areas and the external fabric of the building.

EPC Rating This property has been graded as D (93)


Description

Glien House is a modern, purpose-built office building providing high-quality accommodation within the established Cillefwr Industrial Estate, Carmarthen.

Developed in 2009, the premises were constructed to achieve a BREEAM “Excellent” rating, reflecting best practice in design, construction, and sustainability.

The accommodation provides a range of self-contained and flexible office suites, which can be let as a whole or in flexible sized suites, subject to demand.

Externally, the property benefits from dedicated on-site parking together with an additional nearby overflow car park, providing generous provision for staff and visitors.

Specifications

- Modern detached three-storey office building
- Passenger lift
- Communal entrance lobby with intercom access system
- Carpeted floors (sheet vinyl floorings in parts)
- Suspended ceilings with recessed lighting
- Perimeter trunking and data cabling
- Double glazed windows
- Part air conditioning, part wall mounted electric heaters