Freehold for sale - religious hall premises with 80 car parking spaces on a 0.75 acre site. Development potential (SPC)

 

Summary

  • Suitable for seating 400+ people in main hall
  • Approx 0.75 acre plot with parking for 80 cars
  • Horsham town centre approx 1.3 miles. Adjacent to Littlehaven train station
  • Suitable for alternative uses including care, development, medical, nursery, education STPC

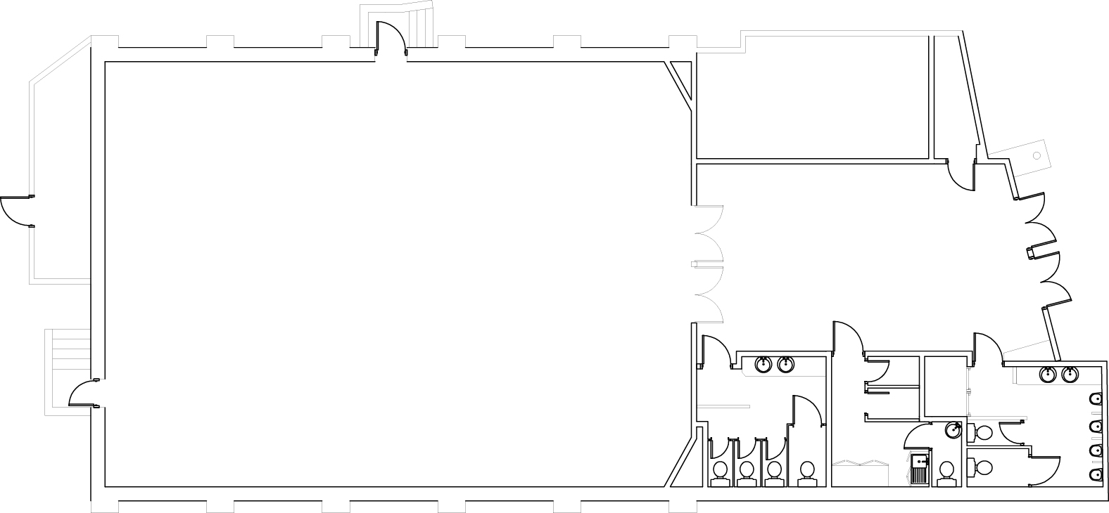
Accommodation

The accommodation comprises the following areas:

Namesq ftsq mAvailability
Building - Hall 3,000 278.71 Available
Total3,000278.71
Church Hall, 131 Rusper Road - Church Hall 131 Rusper Road_1.jpg

Location

131 Rusper Road occupies a convenient and well-connected position immediately adjoining Littlehaven Station, on the northern edge of Horsham. The location benefits from excellent accessibility, with direct rail services to London, Gatwick Airport and the south coast available within a short walk. Rusper Road provides straightforward access to Horsham town centre, offering a wide range of shopping, dining, and leisure facilities, while also connecting easily to surrounding villages and countryside. The area is well served by local amenities, schools, and bus routes, making it suitable for both commuters and families.The setting combines strong transport links with proximity to open green spaces, delivering a balance of connectivity and a pleasant residential environment within this established part of West Sussex.

Get directions from Google Maps

Further Information

Price £1,500,000

Rates Payable Upon Enquiry

Service Charge n/a

EPC Rating This property has been set as EPC exempt.
Reason: Place of worship


Description

The main auditorium is designed ‘in the round’ and comfortably accommodates around 400 seats. Upon entry, visitors are welcomed by a spacious foyer area which includes adjoining toilet facilities, an AV room, and a designated first aid space. The foyer provides direct access to the main hall, which features multiple fire exits that open directly to the surrounding car park, enhancing ease of access and safety. The overall site extends to approximately one acre and provides parking for around 80 vehicles. It occupies a triangular plot, bordered to the east by two detached residential properties fronting Rusper Road. The site benefits from a 5.5m wide access road with an adjoining 1.5m footpath leading to a gated entrance. The land slopes gently downwards from Rusper Road toward the nearby railway station and sits at a lower elevation than some of the surrounding properties.