Summary

Property Type Office
Tenure To Let / For Sale
Size 2,194 to 9,382 sq ft
Rent £15 per sq ft on a new lease with length and term to be agreed.
Rates Payable Upon Enquiry
EPC Rating This property has been graded as B (46)
  • Modern Office Premises
  • Part Refurbished
  • 17 Car Parking Spaces
  • Suites From 2,207 - 9,247 ft2
  • Available To Let or For Sale (as a Whole or Individual Suites)
  • 8 Person Passenger Lift
  • Air Conditioning
  • Excellent Communication Links

About

The property comprises a prominent detached office building, being situated just off the Five Ways island, one of the city’s main arterial routes, and at the heart of the thriving Edgbaston Village district Located between Harborne Road and Calthorpe Road.

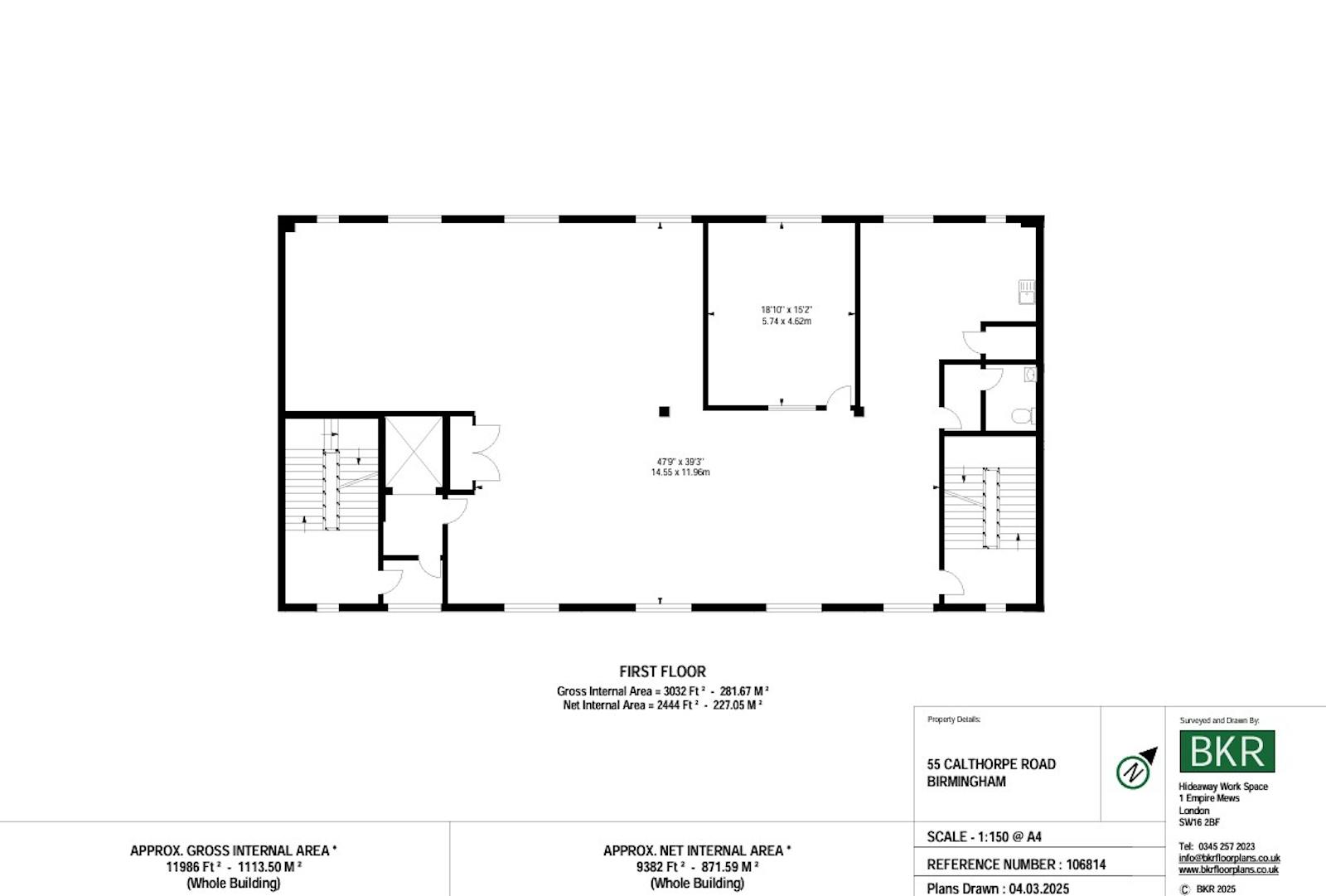
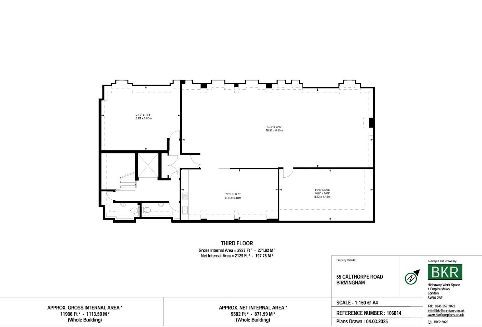
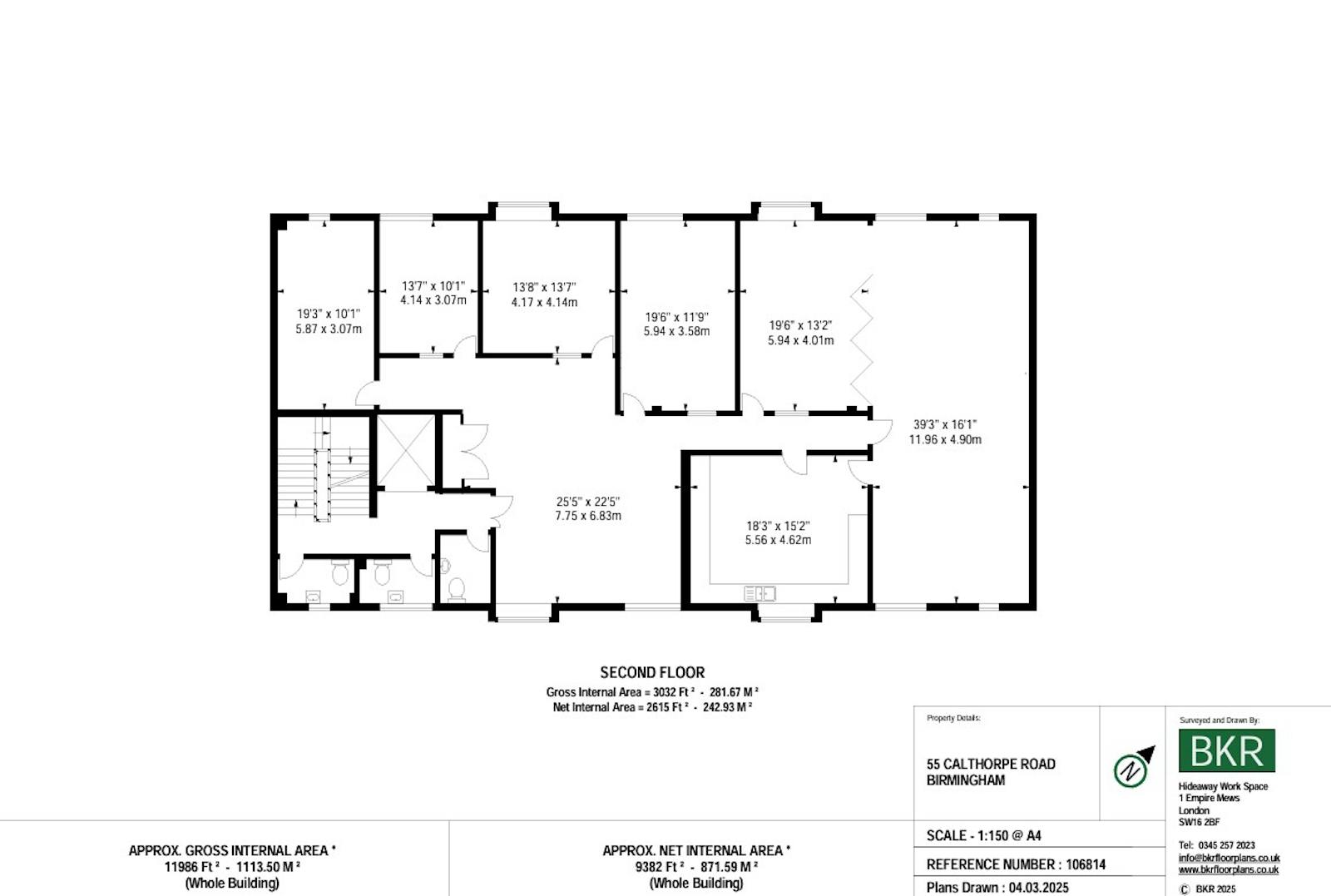
Available on a floor by floor basis or as a whole the property comprises modern office accommodation with each floor having its own toilet facilities, kitchen area and gas central heating. The property also has the benefit of an 8 person passenger lift.

The ground floor, formerly occupied by Handelsbanken features a spacious and inviting reception area, two generous meeting rooms, and a well designed open plan office space. Additional amenities include a dedicated fitted kitchen and canteen, toilets and welfare facilities, ensuring comfortable and functional workspace.

The upper floors comprise a versatile mix of both open plan and cellular office space, all benefiting from modern specification's including: carpet floor coverings, suspended ceiling, inset lighting, floor boxes, gas fired central heating, air conditioning and neutral decor.

Externally the property benefits from generous allocated car parking for 17 vehicles.

Apex Centre, 55 Calthorpe Road, Birmingham, Office To Let / For Sale - p2.jpg

Accommodation

Namesq ftsq mRentAvailability
Ground - Ground floor suite 2,194 203.83 £32,910 /annum Available
1st - First Floor Suite 2,444 227.06 £36,660 /annum Available
2nd - Second Floor Suite 2,615 242.94 £39,225 /annum Available
3rd - Office 2,129 197.79 £31,935 /annum Available
Total9,382871.62

Location

The property is situated fronting Calthorpe Road at its junction with Embassy Drive in the heart of Edgbaston Village, 1 mile south west of Birmingham City Centre.

Communication links are excellent with the property being within walking distance to the Five Ways train station, which is located just one stop away from Birmingham New Street and within a short walk of the Edgbaston Village Tram stop on the Hagley Road.

Motorway access is provided via the M5 (Junction 3), which in turn links to the M6 (Junction 8) to the North and the M42 (Junction 4a) to the south.

Get directions from Google Maps

Apex Centre, 55 Calthorpe Road - p6.jpg

Further Information

  • Planning Use

    We understand the property has planning under Use Class E (offices) and may lend itself to a variety of alternative uses and redevelopment, subject to obtaining all the necessary consents. All enquiries should be made with the local authority:
    Birmingham City Council - Website: www.birmingham.gov.uk

  • Tenure

    The property is held Long Leasehold on a lease from Calthorpe Estate for 125 years (less 10 days) from 29.09.1986 at a current ground rent of £640 per annum, which increases by £160 pa every 10 years.

  • EPC

    EPC - B (45)

  • Purchase Price

    Consideration would be given to a sale of the property as a whole or on a floor by floor basis. Please contact the agent for further information on pricing or to arrange a viewing.