High Quality Warehouse/Production Unit Available To Let

 

Summary

  • Semi detached warehouse/production unit
  • Newly refurbished
  • Air conditioned offices/showrooms
  • Structured network cabling
  • On site parking
  • 5KN/M loading to 1st floor
  • Secure loading area
  • New roller shutter door

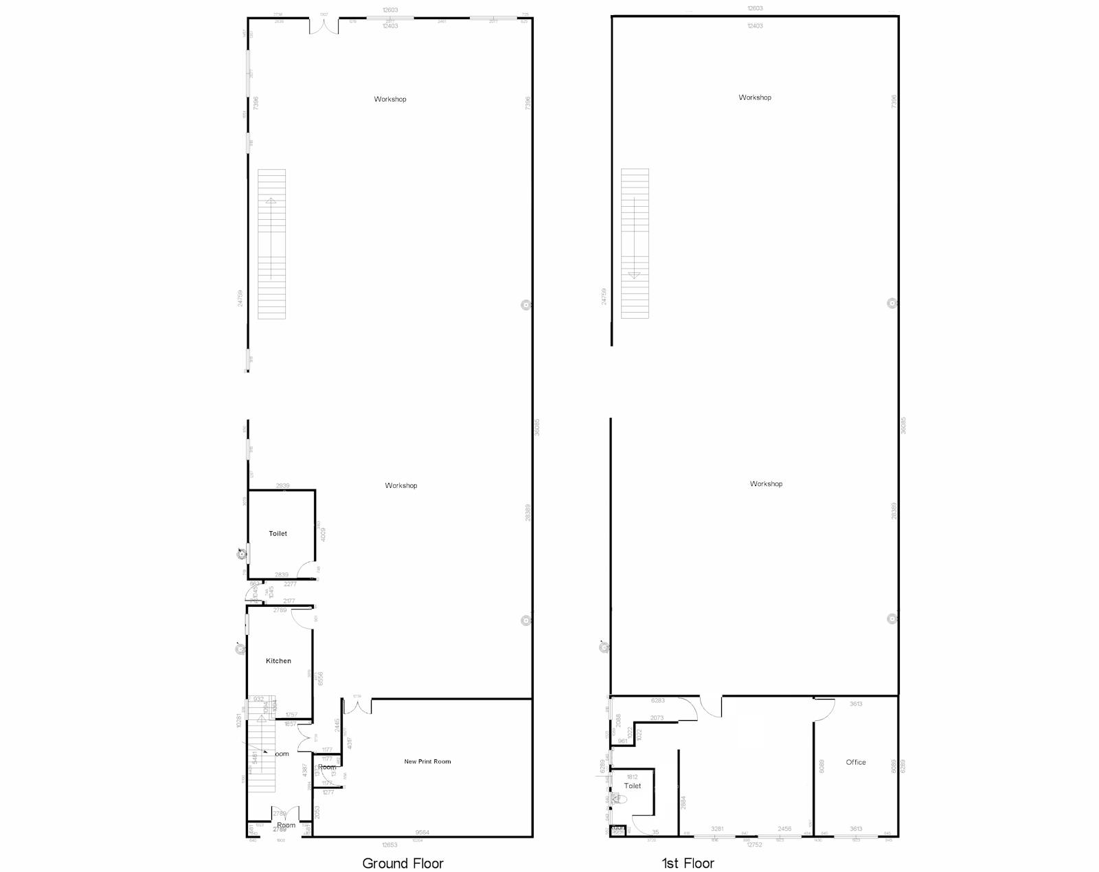
Accommodation

The accommodation comprises the following areas:

Namesq ftsq m
1st - Offices 785 72.93
1st - Warehouse/Production 3,822 355.08
Ground - Office/Showroom 765 71.07
Ground - Warehouse/Production 3,937 365.76
Total9,309864.84
9 Warwick Road - IMG_2810.JPG

Location

Warwick Road is located off Elstree Way (A5315) which is the main route from the A1(M) to Borehamwood town centre. The A1 is less than 1 mile from the building whilst access to Junction 23 M25 is less than 4 miles.

Get directions from Google Maps

Further Information

Rent £135,000 per annum

Rates Payable £56,610 per annum Based on 2025/2026 Business Rates

Service Charge n/a

EPC Rating This property has been graded as B (47)


Description

The property comprises a semi detached unit fitted to an exceptionally high standard to provide flexible accommodation that could suit warehousing, production or showroom uses.

The building benefits from a new roof, roller shutter door, WC, kitchen and office areas.

Externally there is parking for 8-9 vehicles at the front of the building and a secure yard leading to the roller shutter door.

The ground floor has a clear internal height of 3.5m and 4m at 1st floor level.

Viewings

Strictly by appointment with the sole agents

Terms

The property is available by way of assignment of subletting of a lease expiring on 2nd October 2028. Alternatively the superior landlord may consider granting a longer term if required by an incoming tenant.