70 Gray’s Inn Road has been comprehensively refurbished. 3,500 sq ft of fully fitted, self contained space to let.

 

Summary

  • Fully accessible raised floors
  • 2 fully modernised passenger lifts
  • Possibility of a self-contained entrance
  • New four pipe fan air conditioning
  • Partially exposed ceilings
  • Newly refurbished manned reception
  • Bicycle racks, showers and changing facilities
  • EPC B
  • CAT B fitout

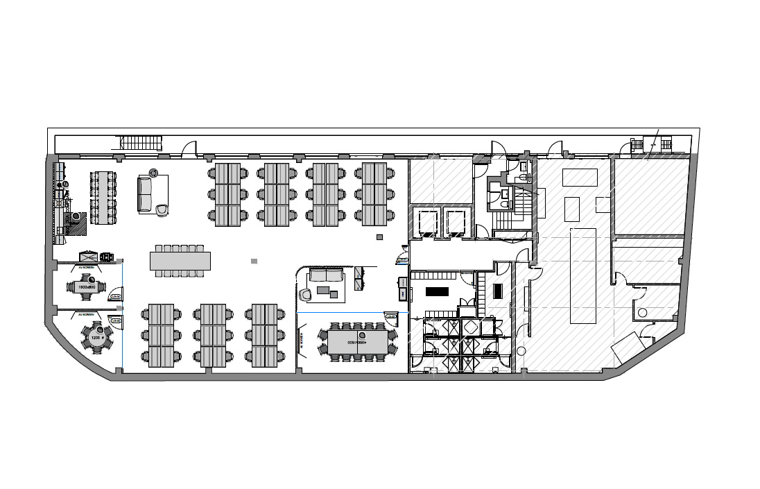
Accommodation

The accommodation comprises of the following:

Namesq ftsq mAvailability
Unit - Garden Level 3,573 331.94 Available
Total3,573331.94
70 Grays Inn Road - 70_Grays_Inn_Rd_View_04_Staircase_Final.jpg

Location

70 Gray’s Inn Road is situated in an enviable location between two of Central London’s most exciting sub-markets, Farringdon and Bloomsbury. Connectivity is excellent with the property situated 250m from Chancery Lane Underground Station, 500m from High Holborn Underground Station and 450m from Farringdon Station which gives access to the Underground, Crossrail and Thameslink.

Get directions from Google Maps

Further Information

Rent £49.50 per sq ft

Rates Payable £19 per sq ft Estimated

Service Charge £13.05 per sq ft Estimated

EPC Rating This property has been graded as B


Description

70 Gray's Inn Road is a prominent island site building of 34,000 sq ft over lower ground, ground and 5 upper floors.

The reception and office space has been comprehensively refurbished, and we now have just one floor remaining totalling 3,500 sq ft.

The works have delivered a high quality office scheme that appeals to diverse occupier base whilst providing an incoming tenant with a unique self-contained opportunity.

Specifications

CAT B
New four pipe fan air conditioning
Fully accessible raised floors
Partially exposed ceilings
2 passengers lifts
Newly refurbished manned reception
Self-contained entrance also available
New end of trip facilities

Viewings

Viewing strictly by appointment only through sole agents Cushman & Wakefield

Terms

Available now by way of a new lease direct from the Landlord for a term by arrangement.