Ground Floor Commercial Unit

 

Summary

  • Ground floor unit of approx 62.2 sq m (670 sq ft)
  • Class E planning use
  • Attractive frontage incorporating period features
  • Prominent corner frontage

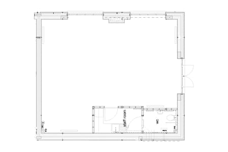
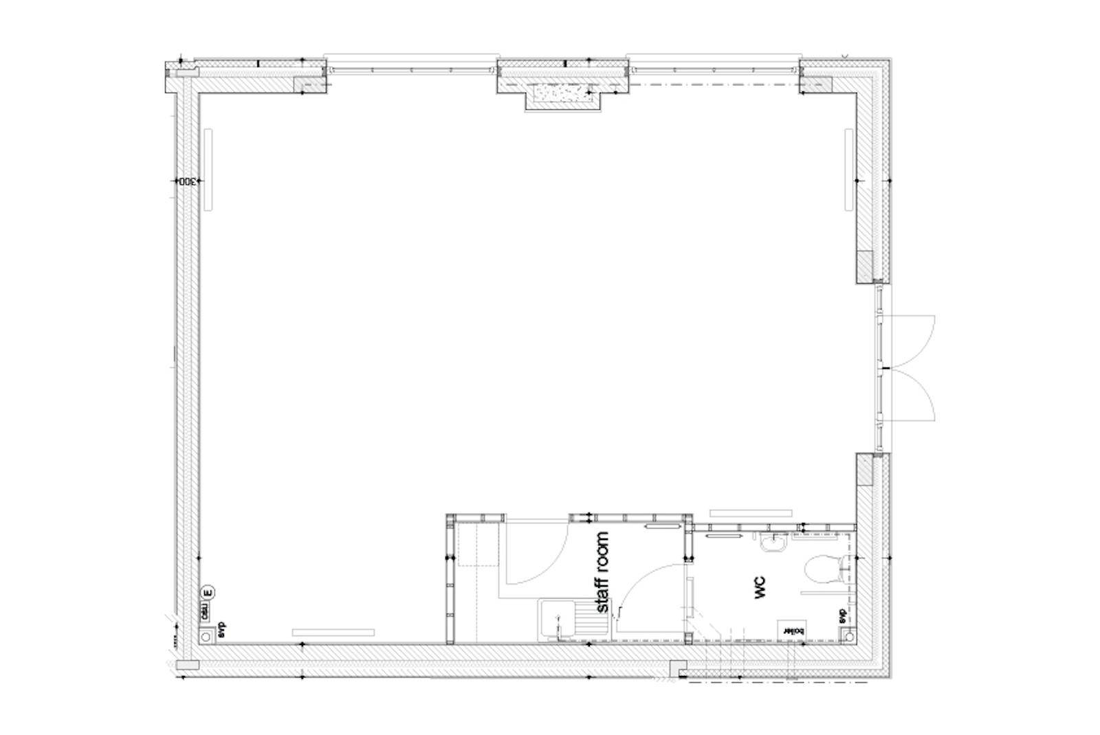
Accommodation

The accommodation comprises the following areas:

Namesq ftsq m
Ground - Sales/Office 615 57.14
Ground - Kitchen 55 5.11
Total67062.25
4 Crown Square - IMG_2887.JPG

Location

Crown Square forms part of the North East Quadrant, the newest phase of development at the Duchy of Cornwall’s Poundbury Estate in Dorchester. The North East Quadrant is a mixed use development stretching from Queen Mother Square at the heart of the development, to the ancient Poundbury Hillfort to the North East.

Crown Square acts as the focal point for this quadrant of Poundbury and includes large scale and architecturally eye catching buildings with a mixture of commercial and residential uses.

Get directions from Google Maps

Further Information

Rent £12,500 per annum

Rates Payable Upon Enquiry

EPC Rating This property has been graded as B (28)


Description

The property comprises ground floor commercial unit within a mixed use building within Crown Square. The unit benefits from a prominent frontage on the corner of Crown Square and Canford Street. The building provides many period features and the unit benefits from large and attractive arched windows. The property includes one demised car parking space in the rear car park.

The internal specification includes a plastered ceiling, gas fired central heating, plastered and decorated internal wall finishes, kitchenette/staff room, fire alarm system & WC.

Tenure

The premises are available to let by way of a new effective Full Repairing & Insuring lease for a term to be agreed.

Rent

£12,500 per annum exclusive.

The estimated annual rental is exclusive of VAT, service charge, insurance, business rates and utilities. Rent is payable quarterly in advance.

Planning

The property is considered suitable for planning uses falling within Class E of the Town & County Planning (Use Classes) Order 1987.

Business Rates

The property has a rateable value of £7,100. The Rates Payable will be determined by the Uniform Business Rate Multiplier which is set by the government annually.

Businesses who can claim Small Business Rates Relief may be able to claim 100% rates relief on this property (no rates paid).

EPC

The property has an energy rating of B–28. A copy of the full EPC is available on request.