Summary

Property Type Trade Counter / Warehouse
Tenure To Let
Size 12,070 sq ft
Rent £55,000 per annum
Rates Payable Building still to be split for rating purposes. Approx. RV of £35,000.
EPC Rating This property has been graded as C (67)
  • Prominence and Signage along Dartmouth Middleway
  • GIA 12,070 ft2 approximately
  • Quoting Rental £55,000 PA
  • Access from Dartmouth Middleway or Nechells Parkway
  • Close to Dartmouth Circus and 1 mile from J6 of M6 Motorway
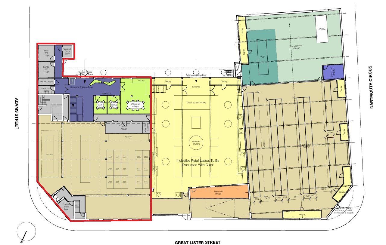
  • Ground Floor Showroom, Rear Stores and First Floor Offices
  • Secure Site with Excellent Car Parking Provision

About

The property comprises an end-terraced industrial building of steel truss construction with pitched roofs, together with a two-storey masonry-built section beneath flat felted roofs.

The ground floor has been part-converted to create a well-presented reception area and attractive showroom/trade counter accommodation. This area features a glazed frontage with pedestrian access doors, providing an open-plan reception alongside demountable cellular showroom areas. Ancillary facilities include a ground floor kitchen and WC provision. To the rear, the premises continue into warehouse and storage areas suitable for a range of light industrial or distribution uses.

The first floor is accessible from both the main reception and the warehouse. This level provides a combination of modern, well-finished offices to the front and side elevations, alongside more secondary office accommodation which may be suitable for storage, breakout areas, or canteen use. Further staff welfare facilities, including additional WCs, are also provided.

The building is secured with roller shutters to all windows and external doors. Externally, the site offers shared loading facilities and customer parking with allocated staff car parking.

Location

The site occupies a prominent position on Dartmouth Middleway (A4540), at its intersection with Great Lister Street.

Dartmouth Middleway provides direct access to Dartmouth Circus which in turn provides access to A38 (M) and junction 6 of the M6 Motorway at Spaghetti junction.

The site is located opposite Birmingham Science Park and next door to Big Yellow Self Store and benefits from main arterial frontage with considerable traffic flow.

Vehicular access is via Adams Street which can be accessed via Heneage Street or Great Lister Street.

Get directions from Google Maps

25 Great Lister Street - DSC07687.jpg

Further Information

  • What3words

    score.rounds.zest

  • Services

    We understand that the site benefits from mains electricity, water and foul drainage.

    The agent has not tested the suitability of the connections and recommends that all interested parties