Residential development opportunity with off road parking and a rear garden.

 

Summary

  • Residential development opportunity
  • Former care community hospital
  • 8 bedrooms
  • Offers in excess of £800,000

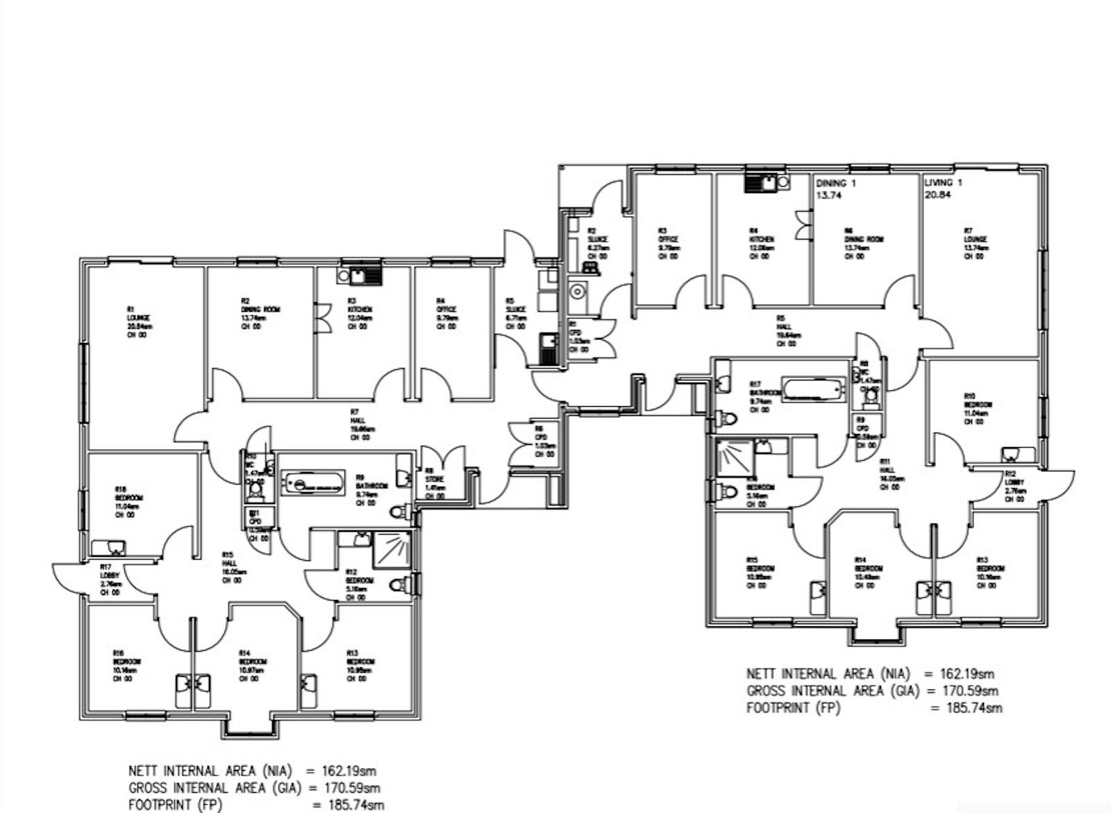
Accommodation

The accommodation comprises the following areas:

Building Typesq ftsq mAvailability
Residential Development 3,998 371.43 Available
230 Mountnessing Road - 1caffea1WhatsApp 20Image 2020251208 20at 20112949_b3b5da5f.jpg

Location

Mountnessing Road is a well-connected route through Billericay (CM12), linking the town centre with Brentwood, Shenfield and Mountnessing Village.

Get directions from Google Maps

Further Information

Price Offers in excess of £800,000

Rates Payable Interested parties are advised to confirm the rating liability with the relevant local authority


Description

This property has been vacant since 2023 but was previously used as an intermediate care community hospital. It comprises of 8 bedrooms, 4 reception rooms, 2 kitchens, office space and 2 bathrooms. It also benefits from a garden to the rear and off road parking.

Price

Offers in excess of £800,000

Viewings

Strictly by prior appointment via the landlords appointed agents Ayers & Cruiks.