To Let - £22.06 psf
Self-contained Ground and Lower Ground Floor Premises
Suitable for defined Class E Uses

 

Summary

  • Storage Space
  • Fully Self-Contained
  • Large Shop Frontage
  • AC (not tested)
  • High Footfall
  • WC'S
  • Fitted Kithenette

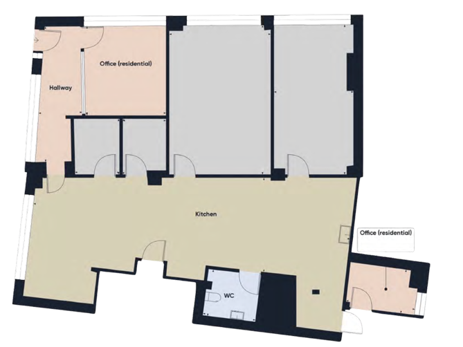
Accommodation

The accommodation comprises the following areas:

Namesq ftsq mAvailability
Ground - Lower Ground 2,380 221.11 Available
Total2,380221.11
199-201 High Street - 5

Location

The premises is situated along the high street itself benefiting from excellent footfall and adjacent with other well established and independent occupiers.

Transport links include Ealing common (District Line) Acton Main Line (Elizabeth Line) Acton Central (Overground) are all within close proximity.

Get directions from Google Maps

Further Information

Rent £52,500 per annum

Rates Payable £29,696.94 per annum

Service Charge TBC


Description

The property lends itself to a variety of different occupiers and has fantastic frontage. Historically a bank, the most recent use was as a rehabilitation clinic. The ground floor is presented in good condition and is currently divided into 5 separate rooms. These partitioned rooms could be demounted to create one open plan area on the ground floor.

The ground floor further benefits from rear fire escape, WCs and fitted kitchen.

The lower ground floor offer ample storage space or could be refurbished to create staff area or even treatment rooms.
The space can be delivered as a fully stripped white box if required.

Planning uses

Change of Use from Class E(e) to Class E (a) / (c)(i) / (c)(iii) / (d) / (e) and (g)(i) at ground floor and basement level and associated works
Permitted Uses Include:
Retail shop
Bank/estate agent
Service provider (e.g. hairdresser, dry cleaner)
Gym or indoor sports facility
Medical clinic or consulting rooms
Office (administrative or operational)