Two adjoining bungalows, previously used as a care home with development opportunity.

 

Summary

  • Residential development opportunity
  • Formerly used as a care home
  • Features a rear garden
  • Offers in excess of £750,000

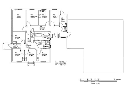
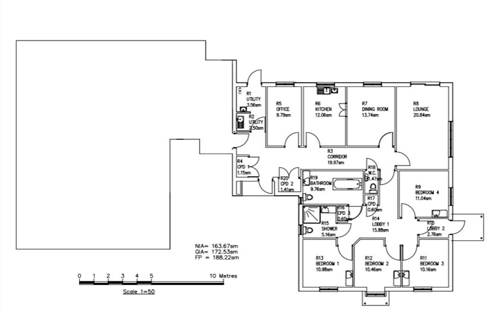
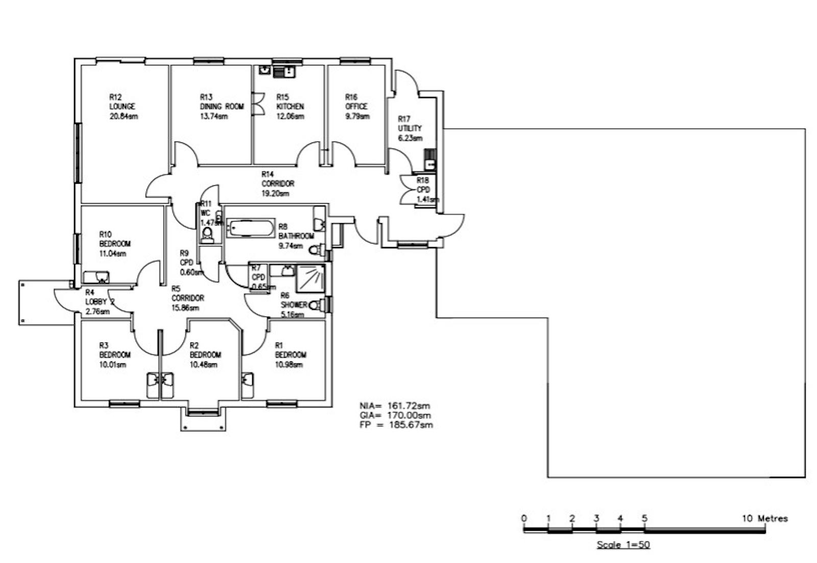
Accommodation

The accommodation comprises the following areas:

Building Typesq ftsq mAvailability
Residential Development 4,023 373.75 Available
1 & 2 Bradd Close - 4ae825e9WhatsApp 20Image 2020251208 20at 20112946_f945bc0a.jpg

Location

Bradd Close is a quiet residential street in South Ockendon, Thurrock. The town lies just outside Greater London and benefits from easy access to the M25 and A13. The area benefits from good local transport links, nearby amenities and close proximity to Tilbury and Thurrock.

Get directions from Google Maps

Further Information

Price Offers in excess of £750,000

Rates Payable Interested parties are advised to confirm the rating liability with the relevant local authority


Description

Two adjoining bungalows formerly used as a care home that can house up to 8 residents. It benefits from a generously sized rear garden. It has the potential to be converted back into bungalows or continued use as a supported living or care facility.

Price

Offers in excess of £750,000

Viewings

Strictly by prior appointment via the landlords appointed agents Ayers & Cruiks.